
设计服务
产品配套
产品质量
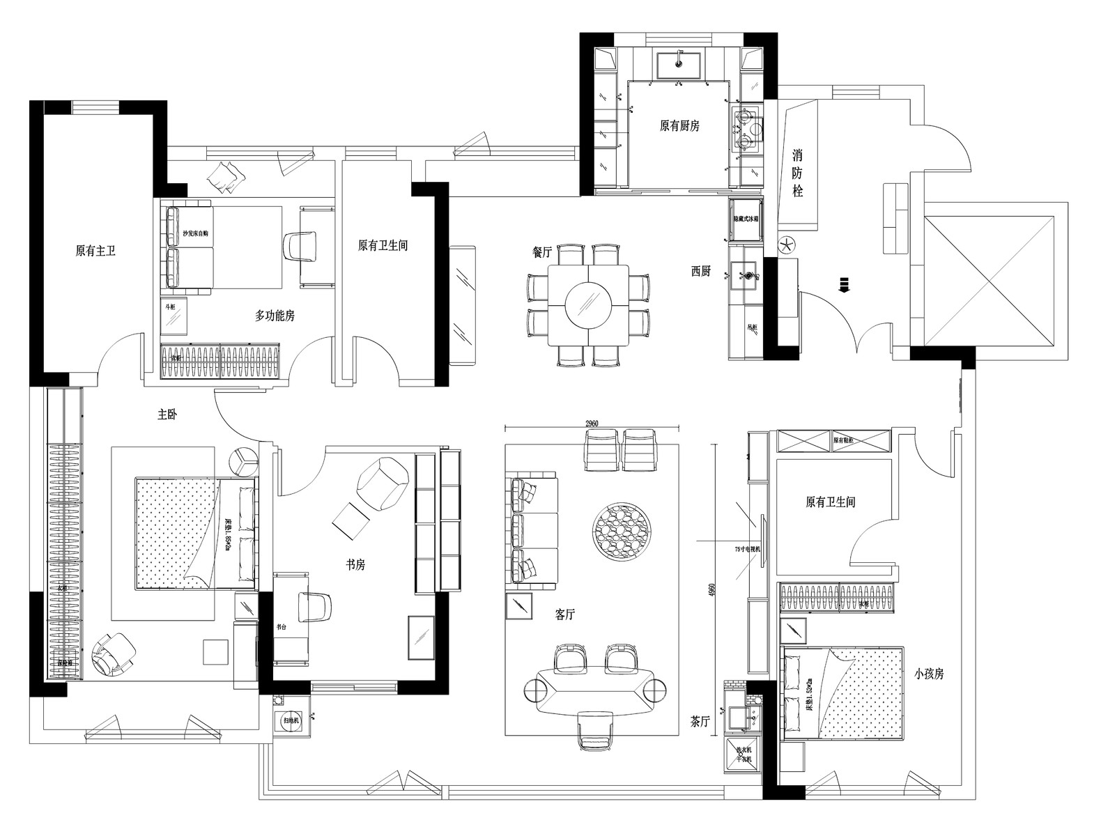
在梁少禧的室内设计理念中,房子设计最重要的是:合理、和谐。户型的规划要方正对称,不要三尖八角。整体空间的规划设计需考虑到空间的容纳人数、所需面积及功能等"硬性指标",使用频率、便捷生活、增进情感与交流等"软性指标"。综合以上理论便有了业界有名的迪信空间规划黄金比例:
厨房的无烟区(多功能区):有烟区(中厨区)=5:5——大多数无烟备餐工作都可在多功能区进行,因此采用开敞式设计;烹饪爆炒等多油烟工作则由中厨区主要负责,采用封闭式设计;
餐厨:客厅=1:1——客厅空间规划的日常容纳人数应是餐厨空间的人数接纳基准,保证到访客人在客厅都能有位置坐着交流,也能确保同数量客人移步餐厅后都有位就餐;
主卧:客厅=4:6——同样,客厅空间的规划来源于房屋主人的日常生活需求,主卧所置办的空间则应跟客厅基于同一考虑水平;
卧室:衣帽卫浴间=1:1——衣帽间、卫浴间等属于功能空间,其在日常的使用频率相当之高,而卧室主要提供"睡眠"空间,不需要过多空间。
业主将房子户型图及需求提供到当地迪信家具专卖店,由专卖店预约迪信总部统一设计。

迪信专卖店跟总部预约时间视频远程或来到总部,由迪信首席设计师梁少禧亲自一对一设计方案。
迪信家装预算约为6500-9000元/平方。其中迪信提供:全屋家具及橱柜、硬装主材(包括:背景、门、饰面板、挂板、阳角铝、水槽、淋浴盆、淋浴玻璃、镜柜等)。非迪信提供:施工、空调、地面材料、基础辅材、马桶、水龙头、厨电、窗帘、门锁等。
业主确定选择迪信家装服务,跟迪信专卖店签订家装合同,并支付项目订金。
在首席设计师梁少禧的指引下选择家具材料款式,再进行全屋色彩搭配(包括门、木饰面、皮布、木制家具、墙板硬包、地面材料、窗帘等)。


专卖店安排人员到现场测量尺寸,再由迪信总部制作全套专业施工图及效果图。 迪信家装设计方案会提供上百张详细家装施工图纸,并进一步利用轴式图说明细节,确保规范和专业的施工质量。
施工图完成后,施工方安排人员来迪信总部,进行施工图交底及工艺细节培训,确保施工人员清楚并熟悉迪信家装标准和流程。
每一个家装项目,迪信都会建立一个独立的工作沟通群,并由包括总设计师、深化设计师、施工监理及专卖店人员组成的专业团队全程跟踪、协调和指导,直至项目顺利骏工。
基准墨线是一所房子装修的首要工作。施工队需提前清理好现场,并严格按标准做好墨线,保证装修顺利按照设计方案进行。


施工队根据设计方案对原有墙体进行合理的移除和补砌,建造好房子的骨骼。
整个装修遵循由上到下的原则,首先处理天花吊顶、空调口、水电布局等。


不规则铺设地面是迪信家装的特色,将地砖按照固定比例顺序排列,避免了视觉上的单调,同时提高了材料的使用率。
迪信家装不需要对墙面进行大面积修补,只需要对挂板挂件位进行找平处理,便可快速处理完墙面准备工作。

工业挂板是迪信家装的一大特色。已申请结构专利的迪信挂板解决了安装、防潮防火、防霉防污的问题,为家居环境提供丰富立面效果,同时优质的材料能够保证产品有一个更长的使用周期。
迪信无论是趟门还是平开门,均采用省略门头的设计,使门与墙面成为一个整体。硬包同样使用不规则拼接设计,视觉上美观大方。


预先在工厂生产好的橱柜、卫浴和家具,在装修现场可以得到快速组装和布置。既能保证产品质量和施工效率,又确保了施工现场的环保安全。
家装的最后一个环节是在卫生清洁后由专卖店人员进行家饰和软装的布置和点缀,使整个空间氛围变得温馨、和谐。

家装项目完成后,迪信专卖店会持续为消费者提供保养和维护的售后服务,确保产品使用安心、放心。



白色
白色草纹
白色条纹
橙色
粉色
灰色
蓝色
绿色
米色格纹
浅香槟草纹
三色条纹
深灰色条纹
十字深杏
银灰色
紫色